Brétigny-sur-Orge (91)
MESS Jean Roy,
BA 217
Programme
Construction du Mess Jean Roy
MAÎTRE D’OUVRAGE
ESID de Saint Germain-en-Laye
MISSION
Maîtrise d’œuvre complète
surface
2 100 m²
MONTANT DES TRAVAUX
6,9 M€ H.T.
DÉMARCHE
HQE
LIEU
Brétigny-sur Orge (91)
ARCHITECTE MANDATAIRE
A.26 Architectures
BET
CET Ingenierie
MODE DE SÉLECTION
Concours
RÉALISATION
Livraison prévue décembre 2020
En remportant le tout récent concours pour la construction du nouveau MESS Jean Roy (Base aérienne 217) à Brétigny-sur-Orge, A26 retrouve le site sur lequel l’agence avait construit l’Institut de recherche biomédicale des armées (IRBA) en 2015.
Une histoire qui se perpétue sur ce très imposant site des armées avec la construction de ce nouveau pôle de restauration de 2 100 m².
A26 vient de remporter le concours lancé par l’établissement du service infrastructure de la Défense d’Ile-de-France pour la construction d’un nouveau MESS sur l’ancienne base aérienne 217 à Bretigny-sur-Orge.
Ce projet, situé sur le même site des terrains appartenant à l’Armée, confirme la satisfaction affichée par le maître d’ouvrage pour la qualité de service déployée par l’Agence lors de la construction de l’Institut de recherche biomédicale des armées (IRBA) en 2015.
L’image de ce nouveau restaurant recherche une sobriété de forme et une qualité de matériaux qui marqueront le bâtiment dans le temps et l’ancreront dans la modernité et la durabilité.
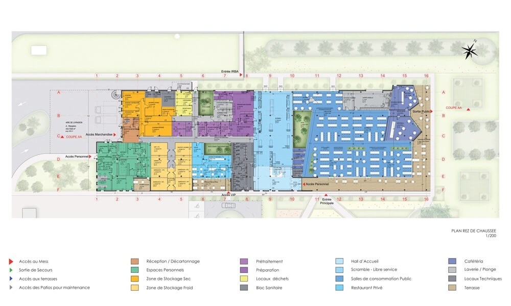
Le parti pris architectural de cet ensemble de restauration s’appuie sur des volumes simples privilégiant la convivialité, le bien-être, les vues sur l’extérieur et la fluidité des communications pour un restaurant qui devra pouvoir assurer à chaque repas, trois services de 500 personnes.
Point de ralliement des personnels de l’IRBA et des forces militaires, ce nouveau bâtiment optimisera les échanges entre les services par des ambiances intérieures et extérieures qui favorisent toute la convivialité : espace lumineux et volume généreux pour l’intérieur, terrasse et végétaux (patios, potager, verger…) pour l’extérieur.
Qualité des matériaux renouvelables et durables, majoritairement bois FSC ou PEFC et verre, exigence dans le traitement des ventilations, maintenance facilitée par le recours à des techniques simples, traitement végétal qui privilégie la mémoire des essences du site, ont contribué à convaincre le jury du concours.





